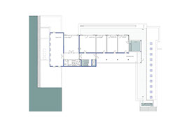
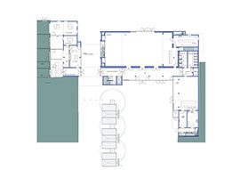
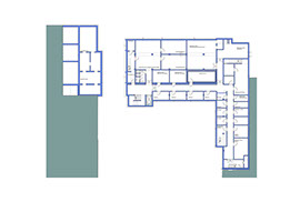
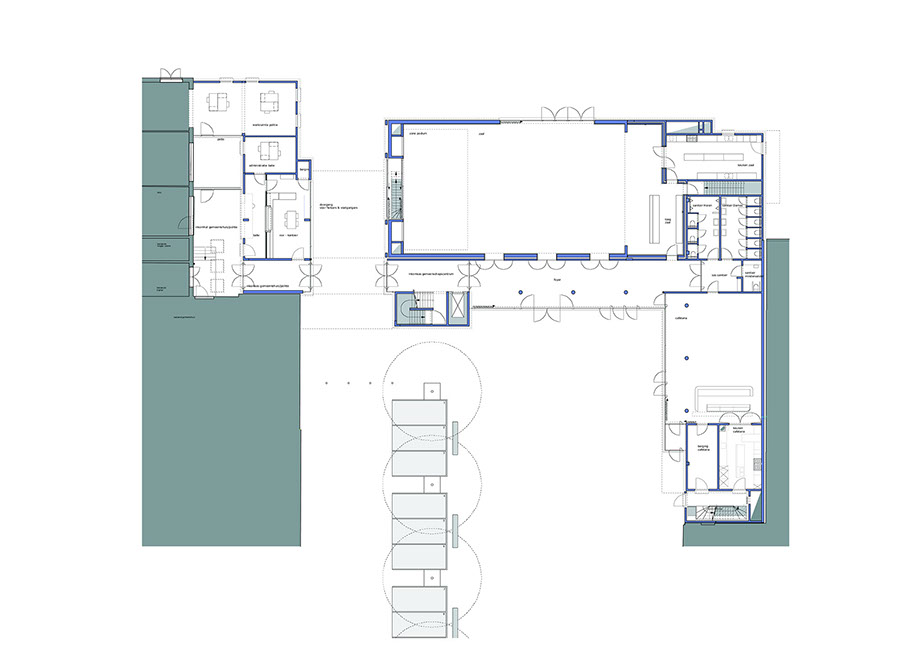
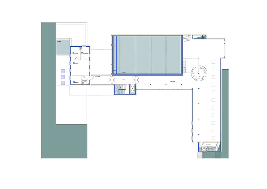
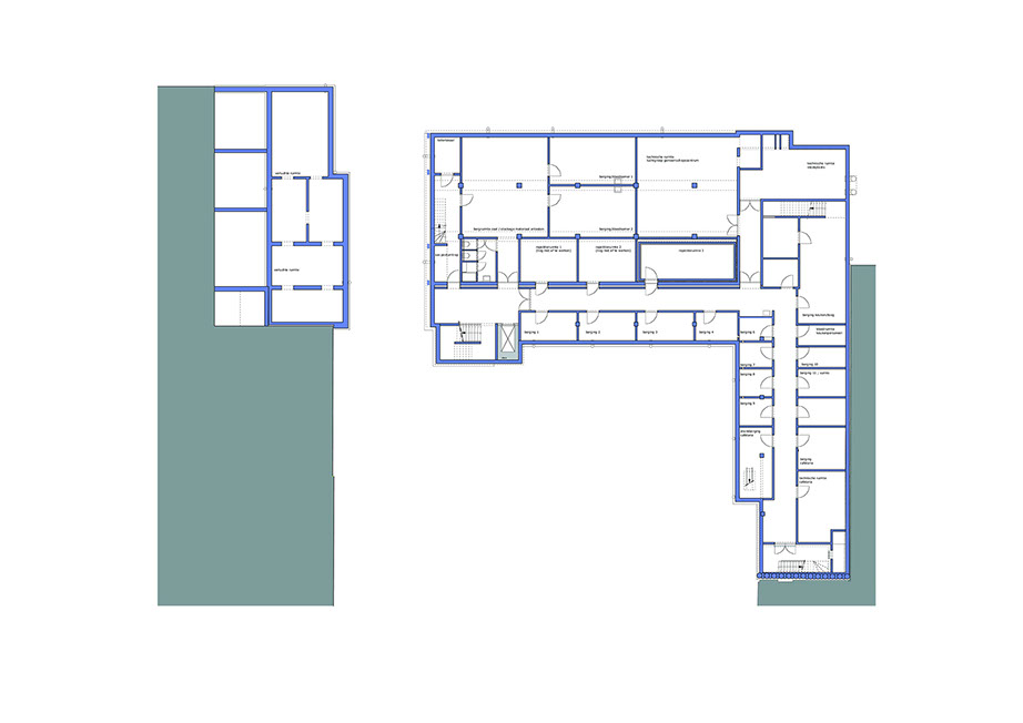
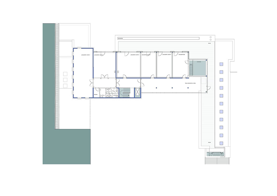
GEMEENSCHAPSCENTRUM MERKSPLAS

Locatie: Merksplas

Bouwjaar: 2003

Programma: Nieuwbouw van gemeenschapscentrum met feestzaal, bibliotheek, cafetaria, ingang gemeentehuis, politie, vergaderzalen en lokalen kind & gezin.

 

Opdrachtgever: Gemeentebestuur Merksplas

Bruto oppervlakte: 2.933 m2

Bouwkost: 3.388.632 euro (excl. erelonen, btw)

Projectleiding: Ief De Schepper

Aannemer: DCA nv

 

bijzondere vermelding:

2007 : ‘Prijs Bouwheer’ van de Vlaamse Bouwmeester

2010 : Publicatie Cahier Vlaams Bouwmeester