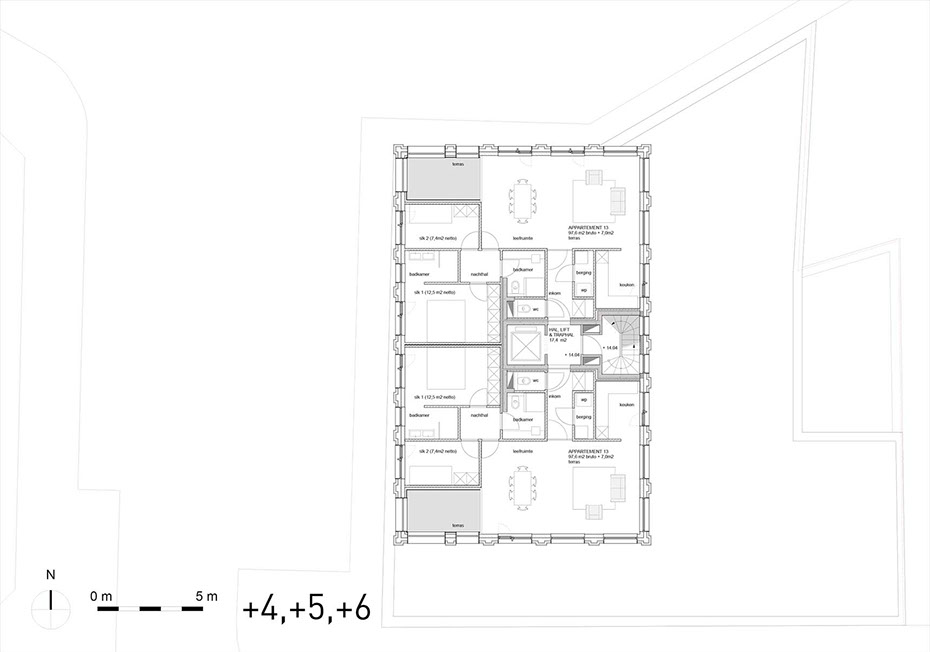
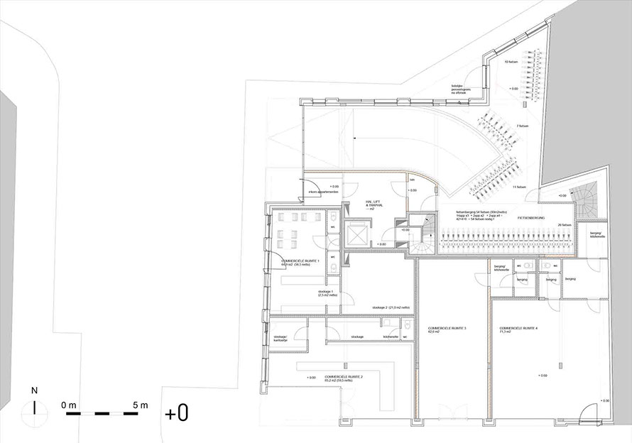
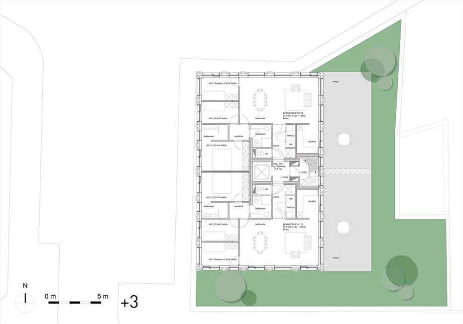
RESIDENTIE JULES

Locatie: Wilrijk

Bouwjaar: Voorzien 2018

Programma:

Nieuwbouw van 18 appartementen, 4 commerciƫle ruimtes & ondergrondse parkeergarage.

 

Opdrachtgever:

M20J bvba

Bruto oppervlakte:

3.489 m2

Bouwkost:

Nog niet bepaald

Projectleiding:

Ief De Schepper

Aannemer:

Nog niet bepaald