OCMW KANTOOR & KINDERDAGVERBLIJF

Locatie: Lebbeke

Bouwjaar: 2011

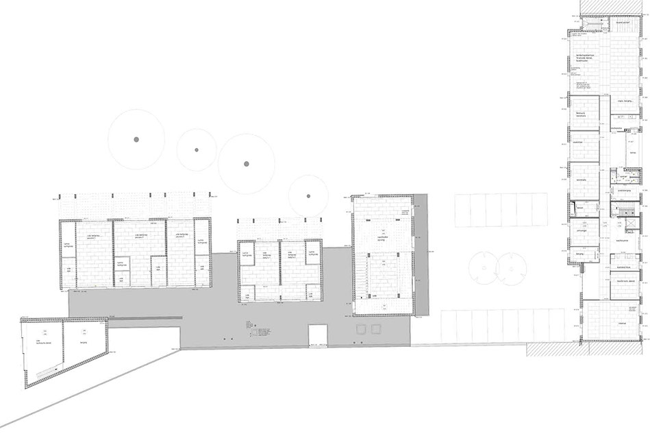
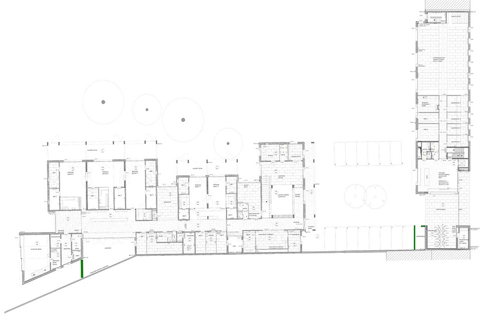
Programma: Nieuwbouw van OCMW kantoren & kinderdagverblijf

met 5 leefgroepen en ruimte voor naschoolse opvang.

 

Opdrachtgever: Belfius bank NV / OCMW Lebbeke

Bruto oppervlakte: 2.740 m2

Bouwkost: 3.827.534 euro (excl. erelonen, btw)

Projectleiding: Jo Meers

Aannemer: Van Cauwenbergh NV