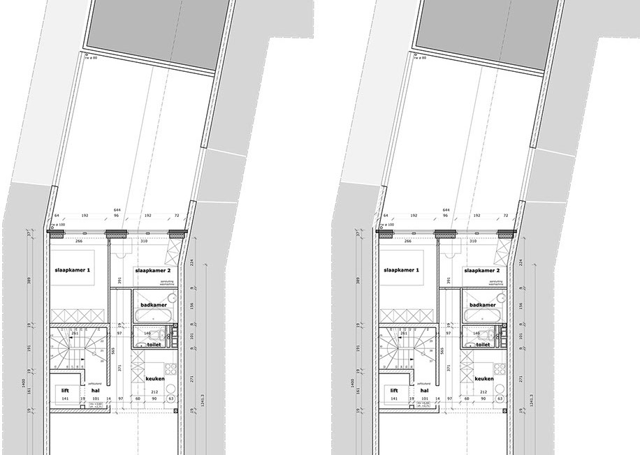
RESIDENTIE NASSAU

Locatie: Antwerpen

Bouwjaar: 2009

Programma:

Nieuwbouw van 4 appartementen en commercieel gelijkvloers.

 

Opdrachtgever:

Notaris Tom Bogaert

Bruto oppervlakte:

530 m2

Bouwkost:

975.325 euro (excl. erelonen, btw)

Projectleiding:

Ief De Schepper

Aannemer: D’Hulst Van Rymenant NV