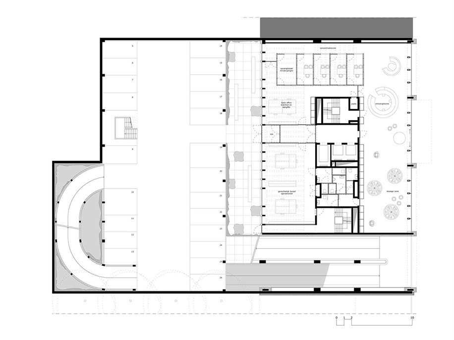
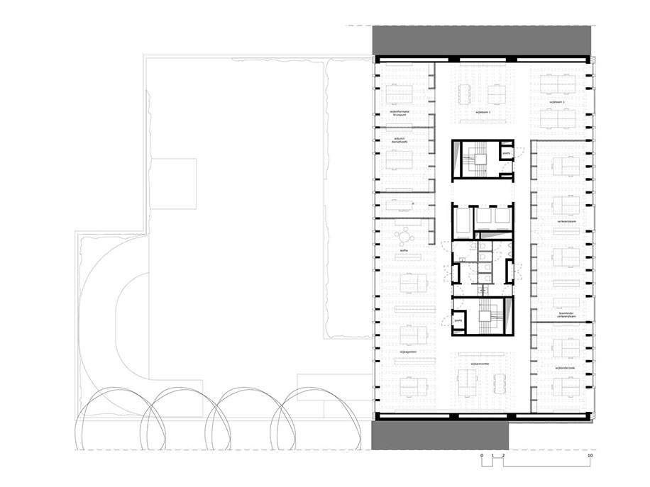
POLITIEKANTOOR

Locatie: Antwerpen

Bouwjaar: 2011

Programma:

Renovatie van een kantoorgebouw tot passief administratief gebouw en onthaal voor de lokale politie Antwerpen zone centrum.

 

Opdrachtgever:

AG Vespa

Bruto oppervlakte:

5.722 m2

Bouwkost:

6.684.096 euro (excl. erelonen, btw)

Projectleiding:

Jo Meers

Aannemer:-